INDUSTRIEIMMOBILIE ZU VERKAUFEN IN KÖRMEND – IM INDUSTRIEGEBIET, NAHE DER ÖSTERREICHISCHEN GRENZE , 9900 kÖRMEND
INDUSTRIEIMMOBILIE ZU VERKAUFEN IN KÖRMEND – IM INDUSTRIEGEBIET, NAHE DER ÖSTERREICHISCHEN GRENZE
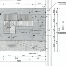
In Körmend (Westungarn), im Industriegebiet, in unmittelbarer Nähe der Umgehungsstraße und nahe der österreichischen Grenze, bieten wir eine Industrieimmobilie auf einem 2.000 m² großen Grundstück zum Verkauf an.
Es handelt sich um eine Stahlrahmenhalle mit isolierten Wand- und Dachpaneelen, die derzeit als Obst- und Gemüsegroßhandel genutzt wird. Aufgrund der Lage und der technischen Parameter eignet sich die Immobilie hervorragend als Firmenstandort, Lagerhalle oder Logistikbasis – insbesondere für Unternehmen mit grenzüberschreitender Tätigkeit Richtung Österreich.
Eckdaten der Immobilie
- Grundstücksfläche: 2.000 m²
- Hallenfläche Erdgeschoss: 360 m²
- Dachgeschoss: 40 m²
- Gesamtnutzfläche: ca. 398–400 m²
- Konstruktion: Stahlrahmenhalle mit isolierten Sandwichpaneelen
- Hallenhöhe: ca. 6,5 m
- Verladung: Rampe vorhanden
- Außenfläche: große asphaltierte Fläche für LKW-Zufahrt, Parken und Lagerung
Anschlüsse
- Wasser
- Strom
- Kanalisation
- Gas an der Grundstücksgrenze
Standortvorteile
Die Immobilie befindet sich in einem etablierten Industriegebiet mit guter Verkehrsanbindung. Die Nähe zur Umgehungsstraße ermöglicht eine schnelle Erreichbarkeit, während die Grenznähe zu Österreich einen erheblichen Vorteil für Logistik und gewerbliche Nutzung bietet.
Nutzungsmöglichkeiten
Die Immobilie ist vielseitig nutzbar und eignet sich unter anderem für:
- Tischlerei
- Schlosserei / Metallverarbeitung
- Autowerkstatt / Servicebetrieb
- Lackiererei
- Bauunternehmen als Firmenstandort
- Lager / Logistik
- kleinere Produktions- oder Verpackungsbetriebe
Das Grundstück bietet zudem ausreichend Platz für Außenlagerung, Erweiterung oder weitere Entwicklung.
Aktuelle Nutzung
Die Immobilie ist derzeit vermietet und wird als Obst- und Gemüsegroßhandel genutzt.
Wichtiger Hinweis: Der aktuelle Mieter verfügt über ein Vorkaufsrecht. Er wurde bereits informiert und hat erklärt, dass er dieses Recht derzeit nicht ausüben möchte. Im Falle eines konkreten Kaufangebotes muss das gesetzlich vorgeschriebene Verfahren erneut durchgeführt werden.
Besonderer Vorteil: niedrige Steuern
In Körmend gibt es keine Gebäudesteuer. Die Grundstückssteuer ist sehr niedrig – aktuell ca. 95.000 HUF pro Jahr.
Besichtigung nach Terminvereinbarung.
Ingatlan állapota: Gut Zustand | Jó állapotú
Wohnraumgröße: 400
Grundstück: 2000
Ingatlan típusa: Gewerbe | Üzleti ingatlan













